岩沼市早股 A棟ひらや
- JR常磐線 岩沼 距離4,700m
- 木造軸組
- 2LDK
- ナチュラルテイスト
- 心地良さを満喫
・電気代を節約♪
太陽光発電×おひさまエコキュート
・黒とグレーを基調とした高級感ある邸宅
・節がない羽目板と、クロスで仕上げた内装で
温かみがある空間を創造♪
・玄関ホールには広々クローゼット◎
コート等を収納◎帰宅動線がぐんっと楽に♪
- 3380万円
- ご成約ありがとうございました
基本情報
| 住所 | 岩沼市早股字松原319-5マップ |
|---|---|
| 築年月 | 2025年4月 |
| 交通 | JR常磐線 岩沼 距離4,700m |
| 価格 | 3380万円 ご成約ありがとうございました |
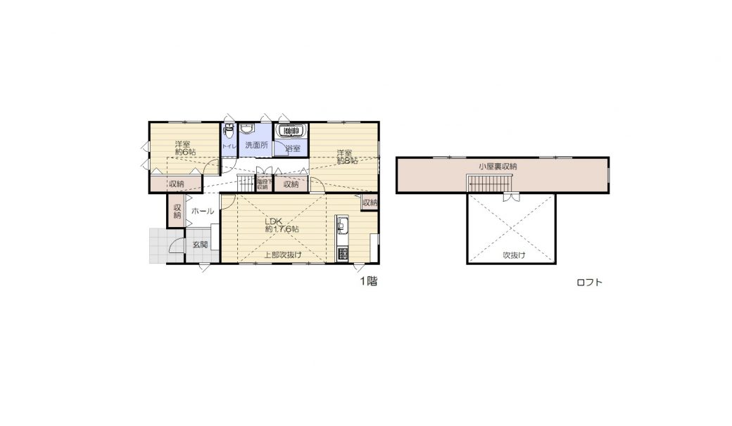
| 間取り | 2LDK |
| 土地面積 | 208.66㎡ |
| 建物面積 | 81.15㎡ |
| ロフト面積 | 19.87 |
| 駐車 | 3台 |
| 入居時期 | 即可 |
| 構造 工法 | 木造軸組 |
| 土地の権利形態 | 所有権 |
| 道路 | 南側 公道4m |
| ほか私道負担 | |
| 用途地域 | 1種低層 |
| 地目 | 宅地 |
| 建ぺい率 | 50% |
| 容積率 | 80% |
| 建築確認番号 | |
| 取引態様 | 媒介(仲介手数料不要) |
| 設備 | 公営水道、本下水、 太陽光発電システム、おひさまエコキュート EV車用充電設備、宅配ボックス |












